
Hledáte moderní, zrekonstruovaný byt, kde stačí jen složit kufry a začít bydlet? Nebo investiční příležitost s okamžitým výnosem?
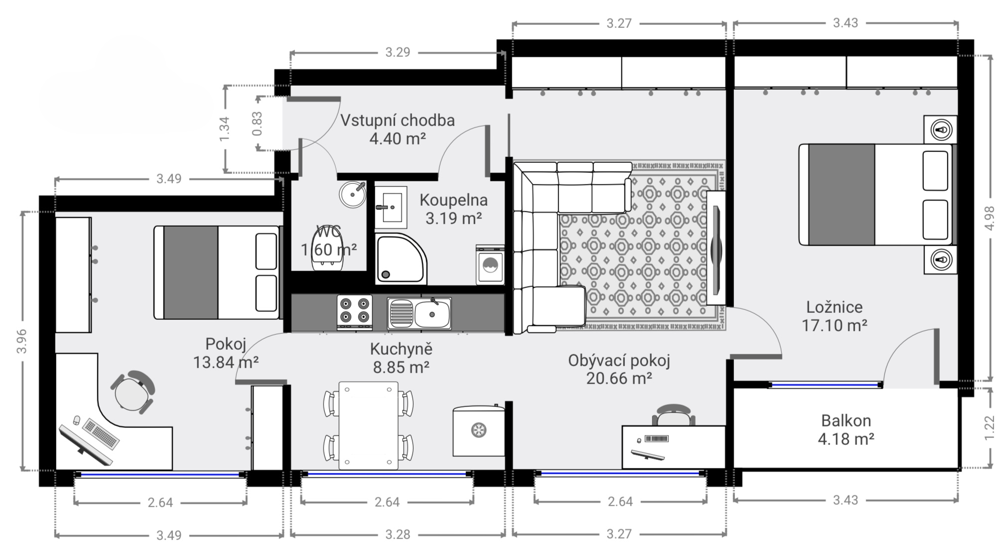
Tento byt 3+1 s lodžií v Mladé Boleslavi je přesně tím, co hledáte! 79 m² promyšleného prostoru, kde se snoubí komfort, světlo a moderní vybavení. Nachází se v 7.NP revitalizovaném panelovém domě.
Lokalita s perfektní dostupností
Byt po rekonstrukci – ihned k nastěhování
Skvělá investice – dlouhodobý pronájem možný okamžitě
CHYTRÁ DISPOZICE A MODERNÍ REKONSTRUKCE
Byt je navržen tak, aby poskytoval maximální komfort a zároveň byl praktický pro každodenní život. Obývací pokoj – prostorný, světlý, s dostatkem místa pro relaxaci i rodinná setkání. Kuchyň s jídelním koutem – plně vybavená dřevěnou kuchyňskou linkou, plynovým sporákem, troubou, myčkou. Ložnice s lodžií – vstup na lodžii (4 m²). Dětský pokoj / pracovna – perfektní pro děti, hosty nebo jako home office. Koupelna se sprchovým koutem – zděné jádro, nové rozvody, okno pro větrání. Samostatné WC s umyvadlem – praktické řešení pro pohodlí celé rodiny. Sklepní kóje.
Byt je po rekonstrukci, nová plastová okna – lepší izolace a nižší náklady na vytápění, plovoucí podlahy a keramická dlažba, dřevěné interiérové dveře, zděné jádro – moderní koupelna a WC.
Stačí se jen nastěhovat nebo pronajmout! IDEÁLNÍ PRO RODINY I INVESTORY – JISTÝ PŘÍJEM!
Byt je aktuálně pronajatý spolehlivým nájemníkům, což z něj dělá výbornou investiční příležitost. Díky blízkosti Škoda Auto je zde vysoká poptávka po pronájmech, což zaručuje stabilní výnos a minimální riziko neobsazenosti.
STRATEGICKÁ POLOHA – VŠE NA DOSAH!
Školy a školky – pár minut pěšky, ideální pro rodiny, zdravotní středisko, sportoviště a dětská hřiště – fotbalový stadion, tělocvičny, parky, restaurace, kavárny, obchody, MHD u domu, skvělá dostupnost – snadné spojení po městě i mimo něj, blízkost Škoda Auto.
DŮM PO REVITALIZACI: Zateplená fasáda, nové stoupačky a opravená střecha, nový výtah
Čisté a udržované společné prostory – pravidelný úklid a správa
Kolárna, prádelna, kočárkárna – praktické vybavení pro rodiny
Dům splňuje všechny moderní standardy, takže se nemusíte bát dalších nákladů.
PROČ SI VYBRAT PRÁVĚ TENTO BYT?
Moderní dispozice – perfektní pro rodinu nebo pronájem
Kompletní rekonstrukce – žádné další investice
Lodžie s výhledem – soukromí a relaxace
Nízké provozní náklady
Výborná lokalita – vše důležité v docházkové vzdálenosti
Možnost okamžitého pronájmu – garantovaný příjem
FINANCOVÁNÍ A MOŽNOST KOUPĚ. Byt lze financovat hypotečním úvěrem, který vám rádi pomůžeme vyřídit zdarma.
ZAUJAL VÁS TENTO BYT? NEČEKEJTE A OZVĚTE SE!
Zavolejte mi na 731 478 503 nebo mi napište zprávu a domluvme si prohlídku. Ráda vám byt ukážu osobně a zodpovím všechny vaše dotazy.
Těším se na setkání! Jaroslava Kubínová RE/MAX Partner.